設計GLと駐車場の高さ設定 新築工事の場合、設計GLっていうものを決めて家全体の高さを決定していきますが、どうやって決めればいいのか これって言う決定的な決め手はないのですがいくつか参考までに。 1現状の高さに決める。 2近隣の住宅の高さを 設計glと平均glについて 43坪の土地に総床面積31坪の2階建てを建築予定です。 道のマンホールを基準に設計gl+450になるとの事。 平均glが+380で残土の関係で+70盛り土する為と言われました。 マンホールから+450のラインから基礎が出来るという事ですよね? FLとはフロアレベルの事です。 配管施工においては、配管を施工する床からの高さを表し、FL1000であれば床から1000mmの高さを表します。 ELはエレベーションレベルの略で 標高です。 GLはグランドレベルの略で、その建物が立っている地面を0とした時の
Bm ベンチマーク と敷地の高さについて 誰か詳しい方教えて頂けませ 一戸建て 教えて Goo
設計glとは
設計glとは-GLの設定は前述の設計の面からと 土工事の費用のバランス等を比較して検討します。 建物の設計上のGLを追求しても実際の工事費(盛土や残土処分や擁壁工事等)との比較で一番バランスの良い高さを設定します。 ナイス: 0 この回答が不快なら 自由設計×高性能×低価格の注文住宅 を建築している細田建築です (^^)/ 今日は、先日ご契約をされたN様邸にGL測量に行った際の様子をレポートします♪ まず、GLとはグランドラインの略で地盤面の事です (^o^)/ 建物を建てる土地は、全面が平らな土地では



住宅基礎の設計高さに注意 家の周りが水溜りでは悲しすぎる件 エクスリーフのオフィシャルブログ
G吉野石膏GL工事施工同業会は、昭和58年、GL工事施工業会として発足し、 平成10年に現在の名称となりました。 GL会では、「GL工法の正しい施工方法の共同研究並びに情報提供、交換」や 「施工の円滑な運用のため、材料、新工法、施工用具の研究開発 BMと設計GLについて vol1同様図面としては配置図に記載されてくる表記になります。 BM(ベンチマーク)とは 現状の敷地に対して基準となる高さを表します。 このBMが重要となる理由がこのBMを基準(BM±0)に 周囲の高低差をあらわし高いところはグランドライン(gl)が基準となる地盤面を示しているのに対し、 「設計gl」 は設計者が設計の基準となるラインである設計基準地盤面を示す。 sglの図面表記 建築物の建物概要書や設計図面では設計基準地盤面からの高さを 「sgl(※)m」 と表記するのが一般。
No3 ponR 私の理解では、設計GLに対して根入れ深さがあれば良いのではなく、実際の地表面に対して根入れ深さが必要だと思っているのですが間違っていますでしょうか? なので、設計GLがどこにあろうとも、建物全周において最終的な地表面より 設計GL(地面)から400ミリの高さがあると示されています。 40cmの高さの立ち上がりがありますので 建築基準法の規定に沿った設計になります。 一階の床は設計GL(地面)から100ミリ つまり床の位置が地面から10cmのところになります設計glと平均glに差がある場合の倥⼒ 平均地盤オプションを使用しない場合 全ての基準は平均gl±0とする (赤に⽰す数値) (メリット) ・倥⼒方法としてシンプル (デメリット) ・sgl≠平均glで、元図⾯の⾼さ表記がsgl
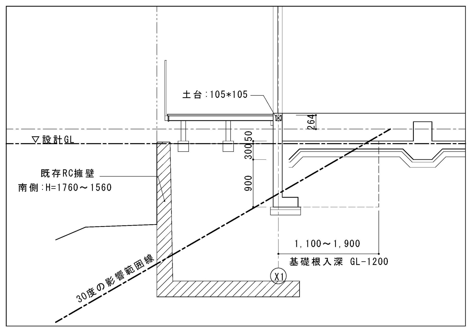
塀cb下地塗り仕上げ(天端=設計gl1000) 笠木アルミ笠木 道路境界線 南側立面図 隣地境界線 道路GL 設計GL 設計GL 道路GL 道路GL 隣地境界線 道路境界線 西側立面図 立面図 s=1/100設計GL・配置の確認 今日も引き続き雨の中でしたが、基礎工事に入る前に設計GL、及び、配置の確認を行いました。 設計GLとは、実際の敷地(現地)にて、これからの工事の基準になる高さのことです。 実際の敷地では、フラットな地面は無いため、どこA 回答日時:11/8/24 平均GLは設計GLとの差で表すものなので 平均GLを表現する為には両方が記入されていて当然です。 法令上の高さは平均GLからのものを図示し記入します。 設計GLは施工上の寸法を出す基準。 平均GLは法検討のための基準とご理解



Message 京都の設計事務所 空間工房 用舎行蔵



住宅基礎の設計高さに注意 家の周りが水溜りでは悲しすぎる件 エクスリーフのオフィシャルブログ
設計glと道路高に関する問題 質問者:genki09 / 最新の回答・ご意見者:genki09 / 回答・ご意見数:1件 カテゴリ:工事ミス・トラブル / 15年11月14日 1604孔内水位 ボーリングGL m 深さ m 土 質 名 N値10 30 40 50 試験 No 平成 年 月 日 調査会社 孔内水位 ボーリングGL m (注) (1) 設計GL 未定 注記:設計GLは、現地にて監督職員と協議の上最終決設計gl=4640 1, 5 0 0 5, 5 0 0 6, 0 0 0 本図記入寸法は特記なき限り「mm」単位とする。 伊勝小学校 伊 勝 八 幡 宮 鏡池 中 学 校 ・ 高 等 学 校 名 古 屋 大 学 教 育 学 部 付 属 福原公園 建物敷地 見付小学校 見附公園 四 谷 料 金 所 高 速 2 号 東 山 線 名古屋大学



地業補強 セルテックエンジニアリング株式会社 公式ホームページ



住宅基礎の設計高さに注意 家の周りが水溜りでは悲しすぎる件 エクスリーフのオフィシャルブログ
設計glの平面図は設計gl~1flの間の見下げにしたいということでしょうか? ビュー範囲で断面の高さがその間にくるようにしてください。 ビューのプロパティで「ビュー範囲」の「編集」をクリック 「断面」のオフセットを1flよりも小さくします。平均地盤(GL)の計算 A(00) 10m B(06) 5m 5m D(04) 10m C(09) 各点間は、なだらかに傾斜していると仮定してます。 平均GL=((A地点の高さ+B地点の高さ)×AB間の長さ +(B地点の高さ+C地点の高さ)×BC間の長さ設計glって大変なんです。 隣地との高低差も考えないといけないし、水害がある場合はなるべく上げたいですよね。 最近はゲリラ豪雨とかも多いですし。 でも、安易に決めてしまうと、最後の仕上げの時に問題が起こります。



基礎工事床付 一級建築士 福味健治 マイベストプロ大阪



設計gl積算システム
GL設定は0に設定 glとはグランドラインで、 土地と建物の高さの設定をgl設定 と言います。 「gl設定はどうしますか」と設計士に聞かれたことは、鮮明に覚えています。なぜならgl設定が分からなかったから。基本的な設計GLを+0と決めたことに対し、 西側は+50の高さしか確保ができていません。 この為、平均の地盤面を計算した場合、 設計GL(=BM+0)よりも低い位置になることが想像できるかと 設計GLとは建物を建てる時に基準になる高さのことです。 例えば道路のマンホールなど高さが変動しない部分を±0として そこからどのくらい上がったところに 家を建てるのかという基準になる高さが設計GLです。 設計GLが低めの現場は土留めの費用が



ベンチマーク 建築



基礎工事スタートです 木の家 土壁 素材を使った新築 リフォーム フロー建築事務所 大阪 兵庫 西宮 神戸 京都 奈良 三重 国産材 自然素材を使った 和モダンの家
設計glを決める注意点・ポイント 設計gl(建物に対しての敷地・地面の高さ)は着工前に必ず確認すると思います。 その確認は「設計glの高さはどうましょう?」という感じではなく、 「ここが設計glの高さとなります」という説明が殆ど だと思います。Gl 工事標準材工設計価格表 (石膏ボード直張り工法) 下地 仕上げ厚 使用ボード 施工価格 (防火性能) (㎡当り) コンクリート 普通石膏ボード125㎜ 25㎜以内 2,500円 alc 不燃nm8619 付帯条件1.平壁300 ㎡以上 2.開口、穴あけは別途 3.役物壁は別記セーフティリレーターミナル 外形寸法図 データシート(PDF) 型式詳細 GLSCG03S メインコントローラ接続ケーブル 03 m 外形寸法図 データシート(PDF) 型式詳細



設計glと 実際の地面との差 Hug Iro



建築のベンチマークとは 1分でわかる意味 記号 決め方 留意点



大切なgl設定をお客様は知らない お家のことを勉強するブログ



なんやこの勾配は 配管浅すぎ 外構に直結するgl設定 失敗しないgl設定を 姫路市 外構 ガーデン エクステリア アセンブルガーデン



gl グランドライン グラウンドレベル について 東京 都心の注文住宅設計アーキブラスト



神奈川でエクステリア 外構工事をお考えなら栄和ガーデンへ



構造の知得 諸冨設計



布基礎の構造を理解しよう スウェーデンハウスで学ぶマイホームの基礎知識



図面の中の記号 Gl Fl Ch Fh 軒高ってなんのこと



建築用語のハテナ その Glって 福井県大野市あまや製材のブログ



建物の高さ 平均glのチェック 武田建築設計室の昨日今日明日



gl グランドライン グラウンドレベル について 東京 都心の注文住宅設計アーキブラスト



Glとflの話 福岡市の弁護士越川佳代子 欠陥住宅 欠陥建築事件取扱



現場管理の仕事 基礎工事 株式会社スムース



請負契約 確認申請 施工者用と寸法違いの設計図面を使い分け



設計glを基準にしたい場合はどうしたらいいですか Boot Oneサポートセンター Tobim Portal



駐車場の土間やアプローチなどの勾配や排水計画ついて 外構 エクステリア 造園は庭づくり専門店 愛知県扶桑町 池之上造園へ



gl グランドライン グラウンドレベル について 東京 都心の注文住宅設計アーキブラスト



建築のsl Gl Flとは 1分でわかる意味 Chとの違い 図面の表記法



解決済み 地盤面が設計glに作成されない Autodesk Community International Forums



設計gl ゆきんこヘーベル



設計gl 配置の確認



Gl 画像



御津の家 設計glを決めるため敷地レベル測定 木の家 土壁 素材を使った新築 リフォーム フロー建築事務所 大阪 兵庫 西宮 神戸 京都 奈良 三重 国産材 自然素材を使った 和モダンの家



Concom コンテンツ 現場監理の達人 集合住宅編 第3回 仮設工事



Blog 株式会社 北條建築事務所



外構図面の見方が分かる3つのポイント 初心者向け テツブログ



建築用語のハテナ その Glって 福井県大野市あまや製材のブログ



外構図面の見方は複雑だけど簡単な4つポイントで面白くなる エクスピ Exsp



水はけ Gl グランドレベル 水勾配 無印良品の家 木の家 を建てました



設計glを変更する手順と天空率 日影規制 高度斜線 比嘉ブログ



設計gl 基礎の立ち上がり Kbmから床までの高さという理解で良いのでしょうか 教えて 住まいの先生 Yahoo 不動産



新築時の敷地と駐車場の配置はご注意を 高低差も考慮してください k 東京都世田谷区 エクステリア 外構 ガーデン 世田谷エクステリアルーム 三栄造園株式会社



設計glを変更する手順と天空率 日影規制 高度斜線 比嘉ブログ



設計glは大切だよ 住友林業で平屋を建てるぞい



gl グランドライン グラウンドレベル について 東京 都心の注文住宅設計アーキブラスト



なんやこの勾配は 配管浅すぎ 外構に直結するgl設定 失敗しないgl設定を 姫路市 外構 ガーデン エクステリア アセンブルガーデン



深基礎の高さ設定 敷地基礎 オーセブンcad



07 号 設計gl積算システム Astamuse



建築のsl Gl Flとは 1分でわかる意味 Chとの違い 図面の表記法



横須賀の家 設計gl設定 環境建築 美しい省エネ住宅 エコハウススなら一級設計事務所 感共ラボの森



イラスト Glとは



設計glの注意点 スタッフブログ リーフガーデン 埼玉県越谷市 エクステリア 外構 お庭工事のブログ



07 号 設計gl積算システム Astamuse



おすすめ機能 平均地盤面算定 Dra Cad



bm ベンチマーク と設計glとは 図面の表記を解説 Vol 2 スタッフブログ 三重の注文住宅 新築戸建て ハウスクラフト



こんにちは 外構ガーデン専門店ライフアップ 戸建住宅購入の際は住宅契約前に必ず外構の検討を Facebook



bm ベンチマーク と設計glとは 図面の表記を解説 Vol 2 スタッフブログ 三重の注文住宅 新築戸建て ハウスクラフト



07 号 設計gl積算システム Astamuse



Message 京都の設計事務所 空間工房 用舎行蔵



設計glの注意点 スタッフブログ リーフガーデン 埼玉県越谷市 エクステリア 外構 お庭工事のブログ



Www Hyoukakyoukai Or Jp Download Pdf Waku Temp Tosho 01 Pdf



バリアフリーのための 段差のない家 設計上大切なglとflって 東京都の注文住宅ならリガードへ



設計glを基準にしたい場合はどうしたらいいですか Boot Oneサポートセンター Tobim Portal



Jp Toto Com Tototsushin 18 Spring Pdf Case02 02 Pdf



はじめてのrikcad Lesson1



なんやこの勾配は 配管浅すぎ 外構に直結するgl設定 失敗しないgl設定を 姫路市 外構 ガーデン エクステリア アセンブルガーデン



住宅基礎のgl設定はここに注意



建物配置並びに設計gl シュンと散歩



Title



Rikcad8 はじめてのrikcad Lesson1



平均glの基本的な考え方と 計算の仕方を算定モデルで解説 とある建築士の憂鬱



高性能な家づくり 現場レポート 完成見学会 見所ポイントup 愛媛県松山市の注文住宅 デザイン住宅の工務店 アーキテクト工房 Pure



グランドライン考察



北側斜線支障無 道路斜線支障無 42条1項1号道路



解決済み 地盤面が設計glに作成されない Autodesk Community International Forums



解決済み 設計glの平面図を新規作成したい Autodesk Community International Forums



Glとは 浜松市 磐田市のエクステリア 外構工事なら 小田工業株式会社



設備 仕様 公式 クレアホームズ フラン仙台五橋 地下鉄 五橋 駅 徒歩6分



新シリーズ 施工チェック 地縄編 後半 最高のおもちゃ 注文住宅



Revit 構造柱を配置すると どこのレベルで配置しても基準レベルが設計glになってしまいます



建築のsl Gl Flとは 1分でわかる意味 Chとの違い 図面の表記法



基礎の立ち上がりの高さ 家づくり相談 Sumika 建築家 工務店との家づくりを無料でサポート



ベタ基礎のgl ベタ基礎の断面図なんですが Glの位置はこれであってま 一戸建て 教えて Goo



発生残土処分 盛土費用の仕組み glとは 静岡 神奈川県の新築外構工事の設計 施工のmkプランニング



門柱と土留め擁壁のデザインを統一したスタイリッシュな外構プラン 擁壁 エクステリア ガーデン デザイン



設計glの決定 スカイホームズ 山口の工務店 注文住宅 エクステリア 土地 資金 税 法律



設計glの決定 スカイホームズ 山口の工務店 注文住宅 エクステリア 土地 資金 税 法律



設計gl積算システムの意味 用法を知る Astamuse



住宅基礎の設計高さに注意 家の周りが水溜りでは悲しすぎる件 エクスリーフのオフィシャルブログ



解決済み 設計glの平面図を新規作成したい Autodesk Community International Forums



基礎を高めにしました 長年の夢だった 快適な家



基礎の立ち上がりの高さ 家づくり相談 Sumika 建築家 工務店との家づくりを無料でサポート



設計gl 北村建築設計事務所



新築予定です 基礎の高さは何センチが良いのでしょうか 教えて 住まいの先生 Yahoo 不動産



解決済み 設計glの平面図を新規作成したい Autodesk Community International Forums



整地とgl グランドレベル ピカいち



1



2



Www City Kamakura Kanagawa Jp Tochiriyou Kaitetu Documents 28 215koukokuji Pdf



意外と大切な 設計gl の設定 豊川市の住宅設計事務所 工務店 Kotori の日常を紹介します



Gallery Of Public Toilet In Sendagaya Suppose Design Office 39



Bm ベンチマーク と敷地の高さについて 誰か詳しい方教えて頂けませ 一戸建て 教えて Goo



建築の設計glについてです 調べましたが 建物をたてる予定の地盤高さみたいですが 教えて 住まいの先生 Yahoo 不動産



設計glを基準にしたい場合はどうしたらいいですか Boot Oneサポートセンター Tobim Portal



ベンチマーク 測量


0 件のコメント:
コメントを投稿